Le contexte
L'appartement que ma cliente souhaitait rénover avait été transformé par un architecte il y a de très nombreuses années.
Au départ, c'était même un très grand appartement d'environ 300 m2 qui avait alors été divisé en deux. On sentait que l'agencement avait été réfléchi et dessiné, mais le tout était daté et surtout l'organisation des espaces était peu adaptée à l'utilisation actuelle.
Lorsque je le visitais la première fois, il comportait une très grande entrée, des toilettes séparées, un triple salon, une salle à manger et une cuisine, mais une seule chambre, une seule salle de bain et un long couloir desservant... le local chaudière !
Cet appartement étant destiné à la location, il me semblait judicieux de créer 3 chambres et d'avoir deux salles de bain, dont l'une avec une baignoire. L'espace le permettait, il me fallait convaincre ma cliente. Après avoir rencontré des agents immobiliers qui lui confirmèrent qu'elle louerait bien plus facilement un appartement avec 3 chambres et 2 salles de bain, surtout dans le XVIème près d'un lycée, elle franchit le pas.
Une fois ma cliente convaincue, nous avons pu peaufiner les plans et choisir les matériaux, sobres et intemporels, pour plaire au plus grand nombre et garder l'esprit de cet appartement du début XXème siècle.
Voici quelques photos de l'appartement lors de ma première visite ;


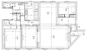
Les plans
Un des principaux changements au niveau de la réorganisation a été de créer une chambre à la place de la grande entrée. Pour cela, l'entrée a été réduite, mais elle reste cependant encore relativement grande. Des placards ont été réalisés de part et d'autre de cette cloison, permettant d'avoir un placard vestiaire dans l'entrée et un placard de rangement dans la chambre.
Ensuite, une 2ème salle de bain a été créée en prenant en partie sur la salle de bain existante et en grande partie sur le long couloir qui desservait le local chaudière ; une grande douche d'un côté, une baignoire de l'autre. L'ancienne salle à manger a été transformée en chambre. Le "petit" salon en salle à manger.

Le plan de l'état existant.

Plan de l'état projeté
Les travaux
Après la dépose des revêtements muraux et de la moquette, le gros des travaux a été la réfection totale de l'électricité et de la plomberie. On a même découvert des câbles de l'appartement du voisin du dessous qui passaient (sans gaines !) entre les lambourdes du parquet !
Mais le plus gros a été la réfection du parquet. En effet, une fois la moquette déposée, nous avons pu voir l'état du parquet existant. Il était constellé de petits trous, la moquette ayant été posée en traditionnel sur thibaude clouée.
Par ailleurs, les transformations réalisées par l'architecte, il y a des années de cela, nous sont apparues plus clairement. Beaucoup de cloisons, de murs et même de conduits de cheminées avaient été démolies pour créer cette suite de pièces de réception... Le parquet n'était pas le même partout ; Point de Hongrie dans une partie du grand salon, lames droites dans l'autre partie ! Impossible de conserver le parquet de cette manière si on voulait avoir la sensation d'une seule et même pièce.
Pour que la totalité de la pièce avec un même parquet en Point de Hongrie, il a fallu rajouter des lambourdes d'une manière transversale à celles existantes et attendre le séchage des scellements, ce qui a pris plus de 8 semaines.


L'enlèvement des très nombreux clous dans les lambourdes a été un travail long et fastidieux.

Le scellement de nouvelles lambourdes a été obligatoire pour permettre que l'ensemble du grand salon ait un parquet en Point de Hongrie sur la totalité de la pièce.

Les gaines électriques ont été passées dans les sols. Plusieurs passes d'enduit ont été nécessaires pour les murs (qui étaient cachés sous les tentures murales) mais aussi et surtout pour les plafonds dont les fissures ont dues être ouvertes et les poutres métalliques traitées avec de l'antirouille avant replâtrage.
Pour respecter les espaces entre les lambourdes, le parquet a été commandé avec des biseaux calculés au millimètre près !

L'isolation phonique des nouvelles cloisons a été réalisée avec de la laine Métisse, un isolant biosourcé à base de textile recyclé.
Dans l'entrée et la nouvelle chambre, de nouvelles corniches en staff réalisées d'après un gabarit pris sur place ont été installées de part et d'autre de la cloison... comme si cette configuration avait toujours existé !


Pendant ce temps, les salles de bain sont totalement transformées.
Après 5 mois de travaux, ce bel appartement est métamorphosé...
Ma cliente peut le mettre en location. Je suis sûr qu'elle trouvera rapidement preneur !

Et pour terminer, voici ce notre cliente a écrit sur Google :
"J'ai demandé à Flora de rénover mon appartement, ses conseils et son goût assuré m'ont été très précieux. Très professionnelle tant dans la préparation des travaux que dans le suivi de leur exécution, toujours à l'écoute. J'ai beaucoup apprécié sa façon rapide et sûre d'aménager les espaces (création d'une chambre et d'une salle de bain supplémentaires), ainsi que ses comptes rendus de réunions de chantier, toujours rédigés avec précision avec photos à l'appui.
Je tiens à souligner également l'excellent travail, le sérieux et l'efficacité de ses entrepreneurs et artisans.
Flora veille à une exécution du travail soignée jusque dans les finitions et les délais sont respectés, ce qui est rare !
Un grand merci à Flora et ses équipes pour ce déroulement de travaux importants qui ont duré 5 mois, le résultat est magnifique !
Je la recommande vivement !"
Ce sera la conclusion pour cette petite visite de chantier !

