Je vais vous parler d'un chantier terminé fin 2025... Il s'agit de la transformation d'un appartement assez vétuste situé dans un immeuble datant de 1840, qui a beaucoup bougé avec le temps. On s'aperçoit ainsi que plafonds et sols ont de gros faux aplomb !
Mais le lieu a du potentiel... À nous de le mettre en valeur.
Etat des lieux
L'appartement était dans son jus, non rénové, ni même vraiment entretenu depuis de très nombreuses années.
Les travaux étaient donc malgré tout relativement importants.

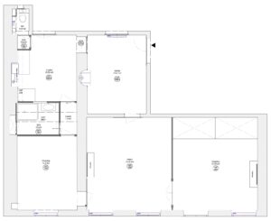
Le plan de l'appartement état existant.

L'entrée avec son poêle, sa moquette rouge et un papier peint fleuri.

La cuisine dans son état initial, murs et plafond peints en vert, crédence orange et revêtement vinylique jaune.

Le salon qui possède de beaux atouts ; belles portes moulurées, corniches et une cheminée en marbre clair.

Une des chambres, la plus grande, possède une cheminée et un immense placard en très mauvais état.

La salle de bain datée et peu fonctionnelle.
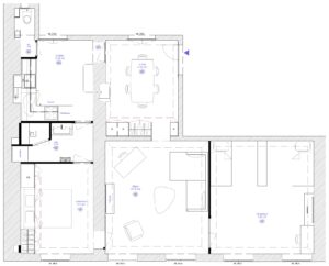
Le projet
Aucune grosse restructuration, ni réorganisation spaciale réélle ; même si quelques ajustements sont réalisés comme transformer la grande entrée en une salle à manger avec beaucoup de rangements dont un vestiaire et reconfigurer complètement la salle de bain.
Bien sûr une rénovation complète est de mise ; électricité, plomberie, sol, corniches en staff, parquet, peinture et agencement menuisé ; beaucoup de placards sur-mesure sont prévus, un grand placard dans la salle à manger, la cuisine et un meuble vasque avec leurs plans en quartz et de grands placards dans la chambre parentale, la plus grande des chambre étant dévolue aux enfants.
Afin de donner l'impression que les placards ont toujours été là, les corniches en staff existantes ont été moulées à l'identiques et posées devant les emplacements des placards.
Le démarrage des travaux
Comme toujours lorsque l'on commence les déposes et démolitions, la quantité de gravats est énorme, et il peut y avoir quelques découvertes étonnantes, comme c'est le cas ici...

Quelques uns des sacs de gravats...

Dans la plus grande des chambres, on découvre une ancienne porte de communication avec l'appartement voisin, condamnée par des blocs de béton et du bois !

Une fois le grand placard de la chambre déposé, on constate qu'il y a plusieurs grosses fissures.
Le doublage des murs avec du BA13 est réalisé après le passage de l'architecte de l'immeuble.


En déposant une des fausses portes, on a également découvert une "belle" fissure en partie basse du mur porteur.
Les fausses portes, comme les fausses fenêtres sont assez "monnaie courante" dans les bâtiments anciens. C'était le moyen trouvé pour les architectes pour obtenir une symétrie ou une modénature de façade rythmée par les ouvertures (vraies ou fausses) !
Ce qui aura été la plus grosse surprise, c'est ce que l'on trouva sous le revêtement vinylique de la cuisine et le carrelage de la salle de bain... Un sol très hétéroclites avec quelques tomettes, une chape et un complexe de double lambourdes, de tasseaux et de panneaux d'aggloméré non hydrofuges !

Il est alors décidé de ne pas couler de chape légère et hydrofuge comme prévu initialement, mais de poser des panneaux en OSB, une chape sèche type Fermacell, puis de poser une natte Ditra de chez Schlüter Système, avant de poser le carrelage, avec un joint périphérique pour prévenir d'éventuels mouvements du bâtiment.
La suite
Heureusement, les surprises s'arrêtèrent là et les travaux avancèrent sans autres déconvenues !

Plomberie, électricité, pose de nouvelles corniches en staff, préparation des murs...

Pose de la natte d'étanchéité Ditra sur toute la surface de la cuisine, de la salle de bain et des WC.

Mise en jeux des portes et fenêtres, pose de placards...

Mise en peinture de la salle à manger et des doubles portes conservées.

Réalisation des raccords, avant le ponçage et la vitrification des parquets et la pose de protection....


Pose des placards sur-mesure dans la chambre, la salle de bain et la cuisine.
. 
Enfin, nettoyage de la cheminée du salon.

Voici la salle à manger toute de bleu vétue, qui met en valeur de poêle à bois peint en blanc pur... et la salle de bain noire et blanche, avec de faux carreaux ciment au sol et de la pâte de verre noire et blanche sur les murs de la douche.
Il nous aura fallu 5 mois de travaux en comptant le mois d'août pour réaliser ces travaux.
J'espère pouvoir prendre des photos une fois que le client aura totalement fini son aménagement ! A bientôt !


